
MX-M182 SIMULATIONS 7-52
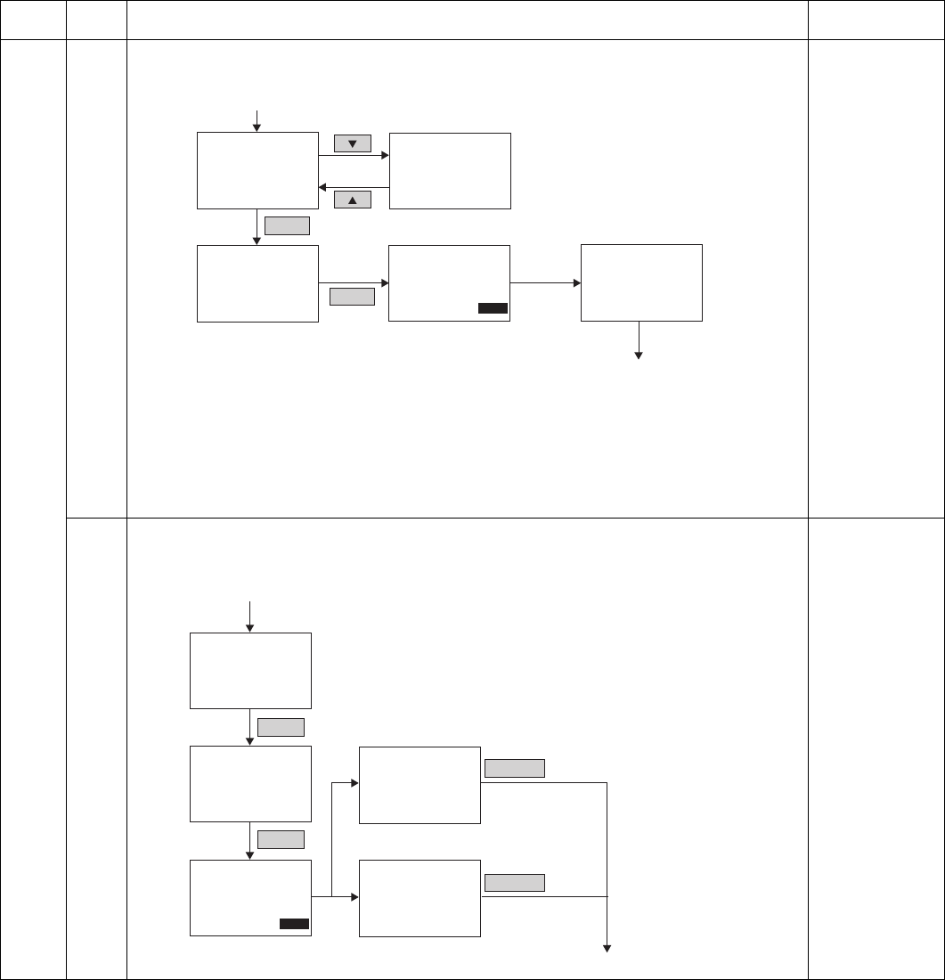
66 02 FAX soft SW initializing
Used to clear the FAX-related soft SW values except for the line signal adjustment value and the machine
adjustment value and set them to the default values (which differ depending on the country code).
03 FAX PWB memory check
Used to check read/write from/into the memory on the FAX PWB. The check result is displayed for each
memory.
Main
code
Sub
code
Contents Remark
Sim66-2 SOFT SW
Sim66-2 SOFT SW
[OK] key
[OK] key
Sim66-2 SOFT SW
Sim66-2 SOFT SW
COUNTRY CODE
Japan 00000000
1/34 SELECT UP DN
INITIAL
ARE YOU SURE? EXEC
Input of a value cannot be made.
INITIAL
EXEC
INITIALIZED
Sim66-2 SOFT SW
COUNTRY CODE
Sweden 100101
25/34 SELECT UP DN
Simulation code input window
1sec later
[CA] key : Simulation cancel
[INTERRUPT] key : Sub code input window
[OK] key : Settlement
[START] key : Settlement
[C] key : Disable
[BACK] key : Disable
U.S.A. 10110101
U.K. 10110100
Germany 00000100
France 00111101
Australia 00001001
China 00100110
Singapore 10011100
Malaysia 01101100
Hong Kong 01010000
Taiwan 11111110
Thailand 10101001
Middle east 11111101
India 01010011
Sweden 10100101
New Zealand 01111110
Spain 10100000
Portugal 10001011
Italy 01011001
Switzerland 10100110
Finland 00111100
Denmark 00110001
Norway 10000010
Netherlands 01111011
Luxembourg 01101001
Belgium 00001111
South Africa 10011111
Czech 00101110
Slovakia 11111100
Hungary 01010001
Greece 01000110
Pohland 10001010
Russia 10111000
Brazil 00010110
Selection
Completion
of execution
(Highlighted
during execution)
Sim66-3 MEMOR CHK
Sim66-3 MEMOR CHK
[OK] key
[OK] key
[BACK] key
[BACK] key
Sim66-3 MEMOR CHK
Sim66-3 MEMOR CHK
1:DRAM 4:IMAGE
2:SRAM 5:PAGE
3:ROM 6:MODEM
( 1 - 6 ) X
DRAM
EXEC
DRAM
CHECKING MEMORY
EXEC
DRAM
MEMORY CHECK RESULT
OK
Sim66-3 MEMOR CHK
DRAM
MEMORY CHECK RESULT
NG XXXXXXXX SUM
Execution normal end
(Highlighted during execution)
SIM66-3 initial window
NG XXXXXXXX SUM
NG XXXXXXXX A-BUS
NG XXXXXXXX DATA
NG XXXXXXXX D-BUS
NG XXXXXXXX ERASE
NG XXXXXXXX IO
[CA] key : Simulation cancel
[INTERRUPT] key : Sub code input window
Numeric keys : Item selection
[OK] key : Settlement and execution of the input value
[START] key : Settlement of the input value
[BACK] key : Returns to the selection window.
[C] key : Disable
*Interruption with [C] key
during execution cannot be made.
Execution error end
(Highlighted during execution)
Comentários a estes Manuais