
AR-FX8 UNPACKING AND INSTALLATION 5-2
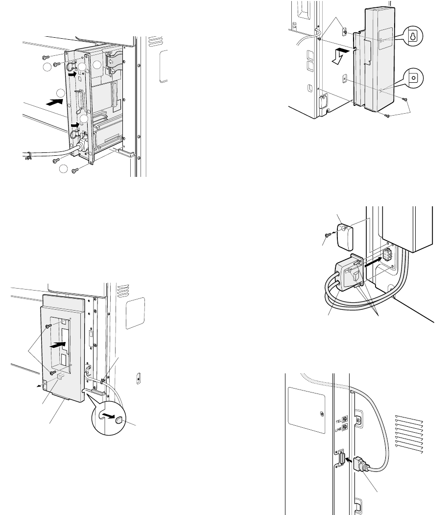
6) Reattach the MFP control PWB unit.
<1>Reattach the MFP control PWB to the main unit.
<2>Connect the two flat cable connectors that have been removed in
step 2).
<Caution>
Ensure that both ends of the connector are securely locked and the
connector is not inserted at an angle.
<3>Secure the unit with four screws.
<4>Return the grips to their original positions.
7) Reattach the upper right cabinet.
Secure the snap band of the FAX interface cable.
Then, remove the cut-out portion for cable arrangement from the
upper right cabinet that has been removed in step 2).
Pull out the grip of the main unit, pass it through the hole shown in
the illustration, then attach the upper right cabinet to the main unit,
and secure it with the two screws.
8) Attach the FAX box unit.
Among the four screws shown in the illustration that secure the rear
cabinet, remove the lower two screws and loosen the upper two
screws.
Then, hang the FAX box unit on the two loosened screws and secure
it with the two removed screws.
Finally, tighten the two loosened upper screws to secure the FAX box
unit.
9) Connect the FAX power connector.
Remove the screw that secures the connector cover on the main unit
for connection with the FAX power connector.
Then, connect the FAX power connector to the connector on the
main unit and tighten the three screws on the connector to secure
the connector.
10) Connect the FAX interface cable to the FAX box unit.
Pass the FAX interface cable behind the FAX box unit and connect it
to the FAX box unit.
2
3
3
4
4
1
Screws
Grip
Upper right cabinet
Snap band
Cut-out portion
Screws
Screws
Connector cover
Screw
Screw
FAX power connector
FAX interface cable
[05]UNPACKINGANDINSTALLATION.fm 2 ページ 2003年11月12日 水曜日 午前9時45分
Comentários a estes Manuais