
AR-F14/PN1 OPERATIONAL DESCRIPTION 4-10
d.Middle 2-point stapling (bind mode)
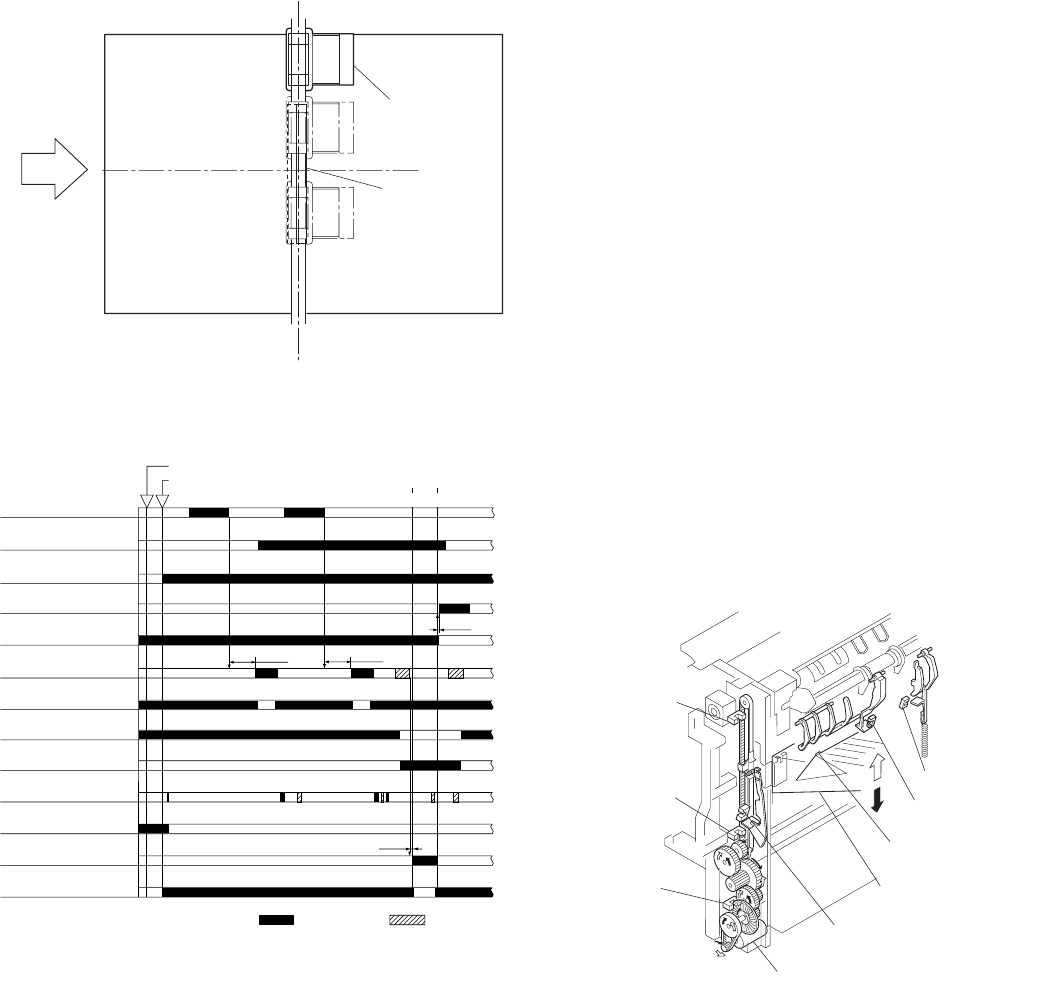
The stapler waits at the back. The stapler moves to and returns from the
stapling position for each stapling operation. The stapler first staples a
paper stack at the rear stapling position and then staples it at the front
stapling position.
Fig.F02-304-06
Stapling Operation Sequence
Rear 1-point Stapling of 2 Sheets
Fig.F02-304-07
4. Delivery Tray Operation
A.Outline
The machine has a delivery tray in the finisher unit and a bind tray in the
saddle unit.
The bind tray in the saddle unit is of the fixed type and all the folded
paper stacks are delivered to this tray. This tray has a bind tray sensor
(FES) to detect presence/absence of paper.
The delivery tray in the finisher unit is moved up and down using a shift
motor (FLM).
The finisher has a tray paper sensor (BES) to detect presence/absence
of paper on the stack tray.
The home position sensor of the delivery tray is detected by the paper
surface sensor (STHPS). When paper has already been stacked on the
delivery tray, the home position is on the top surface of the stacked
paper. When paper has not yet been stacked on the delivery tray, the
home position is at the position where the edge of the delivery tray is
detected. At power-on, the finisher controller PCB drives the shift motor
(FLM) to return the delivery tray to the home position.
When the paper coming from the processing tray is stacked on the
delivery tray, the shift motor is driven a specified number of pulses,
causing the delivery tray to descend. Clock pulses are detected by the
shift motor clock sensor (LE). Then, the delivery tray returns to the home
position for the next stacking operation.
The upper limit of the delivery tray is detected by the shift upper limit
sensor (ULS). When the shift upper limit sensor (ULS) is turned ON, the
finisher controller PCB stops the shift motor (FLM) that is ascending.
The lower limit of the delivery tray is detected by the shift lower limit
sensor (LLLS). When the shift lower limit sensor (LLLS) is turned ON,
the finisher controller PCB stops the shift motor (FLM) that is
descending.
The finisher unit has a full stack sensor (PI24) to detect overstacking of
large-size or mixed paper according to the stack height.
Fig.F02-401-01
Feed direction
Standby position
Stapler
Stopper
Stapling position
Stapling position
Host machine delivery signal
Start signal
Inlet sensor (ES)
Processing tray sensor
(AS)
Feed motor (FFM)
Delivery motor (FAM)
Paddle motor (FPM)
Paddle home position
sensor (PHPS)
Swing guide home
position sensor (ARHPS)
Stapler safety switch
(SSS)
Alignment motor (front)
(FFJM)
Aligning plate home position
sensor (front) (FJHPS)
Staple/fold motor
(FFSM)
Staple home position
sensor (STHPS)
CW rotation CCW rotation
Delivery belt home
position sensor (OBHPS)
360msec
10msec
20msec
360msec
Stack delivery
Staple
Tray paper sensor (BES)
Shift motor (FLM)
Shift motor clock sensor
(LE)
Shift lower limit sensor
(LLLS)
Full stack sensor (XXXX)
Shift upper limit sensor
(ULS)
Delivery tray
Paper surface sensor (SLS)
Edge
[04]OPERATIONALDESCRIPTION.fm 10 ページ 2004年4月19日 月曜日 午後1時37分
Comentários a estes Manuais