Sharp PC-A800 Especificações Página 17

  • Descarregar
  • Adicionar aos meus manuais
  • Imprimir
Vista de página 16
11
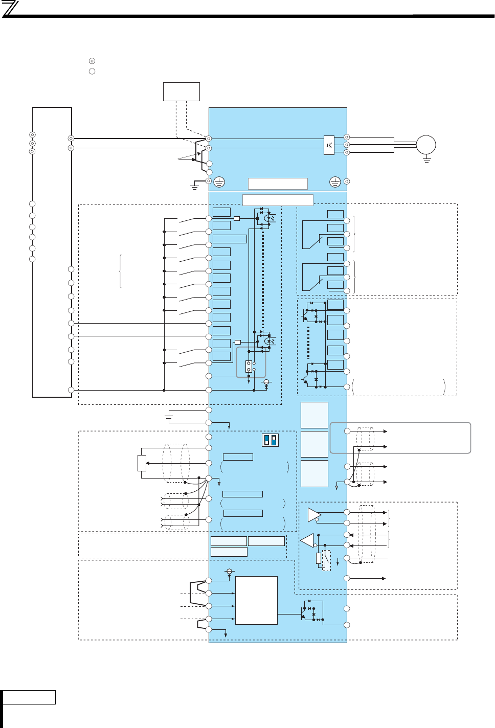
WIRING
CA type
For footnotes *1 to *9 refer to next page.
Note
The FR-A842 models must be operated with a converter unit (FR-CC2), which has to be operated separately. For more
details about the installation of the converter unit please refer to the corresponding FR-CC2 Instruction Manual.
R1/L11
S1/L21
PC
10E(+10V)
10(+5V)
2
2
3
1
1
4
C1
B1
A1
U
V
W
C2
B2
A2
M
TXD+
TXD-
RXD+
RXD-
SG
SINK
SOURCE
STF
STR
STP(STOP)
RH
RM
RL
JOG
RT
MRS
X10
RES
AU
CS
SD
RUN
SU
IPF
OL
FU
SE
(+)
(-)
5
VCC
(+)
(-)
N/-
P/+
ON
OFF
42
SO
SOC
S1
S2
PC
SD
SIC
+24
SD
24V
24V
(-)
(+)
(-)
(+)
AM
5
F/C
(CA)
RDA
RDI
RSO
SE
N/-
P/+
IPF
RDB
FAN
R/L1
S/L2
T/L3
OH
RES
SD
PC
+24
C1
B1
A1
Source logic
Main circuit terminal
Control circuit terminal
Earth
Earth
Main circuit
Control circuit
Control input signals *2
Forward rotation start
Reverse rotation start
Start self-holding selection
High speed
Middle speed
Low speed
Multi-speed
selection
Jog operation
Second function selection
Output stop
Reset
Terminal 4 input selection
Selection of automatic restart
after instantaneous power failure
Safety stop signal
(Common for external power
supply transistor)
Frequency setting signals (Analog)
Auxiliary input
Terminal 4 input
(Current input)
0 to 5VDC
0 to ±10VDC
4 to 20mADC
0 to 10VDC
0 to 20mADC
0 to ±5VDC
0 to 5VDC
0 to 10VDC
PU
connec-
tor
Connector for plug-in option
connection
connector 1
Termi-
nating
resistor
Relay output 1
(Alarm output)
Relay output 2
Running
*9
Up to frequency
Overload
Frequency detection
Open collector output common
Sink/source common
Analog current output
(0 to 20mADC)
Analog signal output
(0 to ±10VDC)
RS-485 terminals
Data transmission
Data reception
Frequency setting
potentiometer
1/2W, 1kΩ
*6
Open collector output *8
Relay output *7
Voltage/current
input switch *5
(Analog common)
Brake unit
(option)
Motor
USB A
connec-
tor
USB mini
B con-
nector
24V external power supply input
Common terminal
connector 2
connector 3
Shorting
wire
Safety stop input (Channel 1)
Safety stop input (Channel 2)
Safety stop input common
Output
shutoff
circuit
Initial value
Initial value
selectable
Initial value
selectable
selectable
GND
Safety monitor output
Safety monitor output common
5V (Permissible load
current 100mA)
Jumper
*1
Contact input common
24VDC power supply
Converter
unit
*3
*4
*5
*5
*5
Vista de página 16
1 2 ... 12 13 14 15 16 17 18 19 20 21 22 ... 67 68

Comentários a estes Manuais

Sem comentários