Sharp PC-A800 Especificações Página 13

  • Descarregar
  • Adicionar aos meus manuais
  • Imprimir
Vista de página 12
7
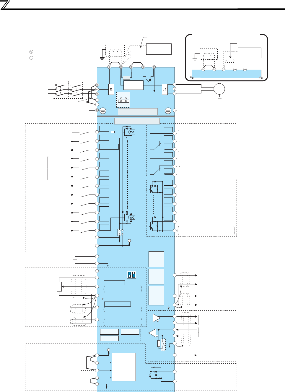
WIRING
CA type
For footnotes *1 to *10 refer to next page.
3
5
3 35 13
MCCB
R/L1
S/L2
T/L3
R1/L11
S1/L21
PC
10E(+10V)
10(+5V)
2
2
3
1
1
4
F/C
(CA)
C1
B1
A1
U
V
W
P1
AM
5
MC
C2
B2
A2
M
TXD+
TXD-
RXD+
RXD-
SG
SINK
SOURCE
∗5
∗5
∗5
∗5
STF
STR
RH
RM
RL
JOG
RT
MRS
RES
AU
CS
SD
RUN
SU
IPF
OL
FU
SE
(+)
(-)
5
ON
OFF
+24
SD
VCC
(+)
(-)
R
R
PX PR N/-P/+
ON
4
2
OFF
So
SOC
S1
S2
PC
SD
SIC
∗4
ˉ
ˇ
ˉ
ˇ
ˉ
ˇ
STP(STOP)
24V
24V
Source logic
Main circuit terminal
Control circuit terminal
Jumper
Earth
Earth
3-phase
AC power
supply
EMC filter
ON/OFF
connector
Main circuit
Control circuit
Control input signals *3
Forward rotation start
Reverse rotation start
Start self-holding selection
High speed
Middle
speed
Low speed
Multi-speed
selection
Jog operation
Second function selection
Output stop
Reset
Terminal 4 input selection
(Current input selection)
Selection of automatic
restart after instantaneous
power failure
Safety stop signal
(Common for external power
supply transistor)
Frequency setting signals (Analog)
Auxiliary input
Terminal 4 input
(Current input)
0 to 5VDC
0 to ±10VDC
4 to 20mADC
0 to 10VDC
4 to 20mADC
0 to ±5VDC
0 to 5VDC
0 to 10VDC
PU
con-
nector
Connector for plug-in option
connection
connector 1
Termi-
nating
resistor
Relay output 1 (Alarm output)
Relay output 2
Running
Instantaneous power failure
Up to frequency
Overload
Frequency detection
Open collector output common
Sink/source common
Analog current output
(0 to 20mADC)
Analog signal output
(0 to ±10VDC)
RS-485 terminals
Data transmission
Data reception
Frequency setting
potentiometer
1/2W, 1kΩ ∗6
Inrush current
limit circuit
Open collector output *10
Relay output *9
Voltage/current
input switch
Analog common
Jumper
Brake unit
(option)
FR-A820-00770(15K)–01250(22K)
FR-A840-00470(18.5K)–01800(55K)
Motor
Earth
DC reactor
(FR-HEL)*1
DC reactor
(FR-HEL) *1
Brake resistor
(FR-ABR) *8
Brake unit
(option)
USB A
con-
nector
USB
mini B
con-
nector
Earth
24V external power supply
input
Common terminal
connector 2
connector 3
Shorting
wire
Safety stop input (Channel 1)
Safety stop input (Channel 2)
Safety stop input common
Output
shutoff
circuit
Initial value
Initial value
selectable
Initial
value
selectable
selectable
GND
Safety monitor output
Safety monitor output common
5V (Permissible load
current 100mA)
Brake resistor
(FR-ABR) *7*8
Jumper
*2
Contact input common
24VDC power supply
Vista de página 12
1 2 ... 8 9 10 11 12 13 14 15 16 17 18 ... 67 68

Comentários a estes Manuais

Sem comentários