
4
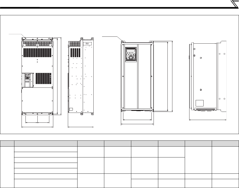
OUTLINE DRAWING
For dimensions of the converter unit (FR-CC2) refer to the FR-CC2 Instruction Manual.
(Unit: mm)
Inverter Type W W1 H H1 D
C
400V class
FR-A842-07700(315K)
540 200 1330 1300
440 12
FR-A842-08660(355K)
FR-A842-09620(400K)
680 240 1580 1550FR-A842-10940(450K)
FR-A842-12120(500K)
FR-A846-00023(0.4K) to 00170(5.5K)
238 201
520 508 271 8
FR-A846-00250(7.5K) to
00470(18.5K)
650 632.5 285 10
FR-A842-07700(315K) to 12120(500K)
FR-A846-00023(0.4K) to 00470(18.5K)
Comentários a estes Manuais