
8
VL-A111S/H/E/AH131S/H/E
VL-AH151S/H/E
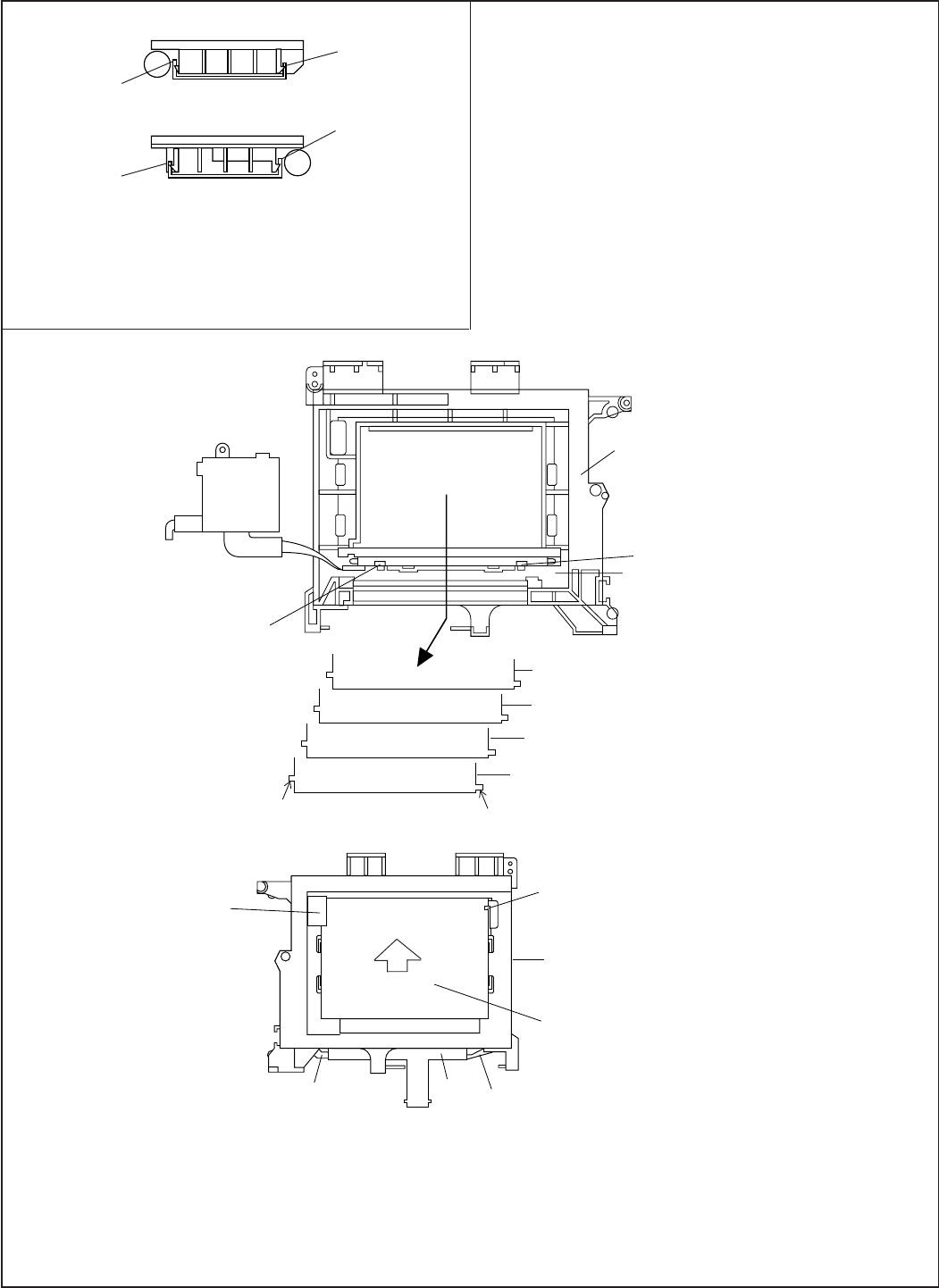
<11. Disassembly of the LCD panel>
Light guide plate
Reflection sheet
(C)
Prism sheet
Diffusion sheet
1. Disengage two claws (A), and remove the lamp inverter unit (1) from the LCD holder (2).
2. Remove the sheets from the LCD holder (2).
3. Pull the LCD glass retaining (3).
4. Remove the FPC from Arm(D) and (E).
5. Disengage the claw (B), and slide the LCD panel (4) in the (C) direction to remove the LCD holder (2).
Note:
When handling the prism sheet, diffusion sheet, light guide plate and reflection sheet do not touch any parts other than lugs and
sides.
With the light guide plate and reflection sheet between reflectors of lamp, install them together with the lamp ass'y.
Note:
When fixing the cassette compartment lid, first engage the claws
A and B, and then engage the claws C and D, confirm that the four
claws (A, B, C and D) of the cassette compartment lid are
securely engaged as shown in the view above.
Claw C
Claw A
Claw B
Claw D
View E
View F
(2)
(4)
Arm(D)
FPC
Arm(E)
Claw (B)
Disengage the claw, and remove the
LCD panel.
(1)
Claw (A)
(2)
Claw (A)
Lugs
Lugs
(3)
Comentários a estes Manuais